優秀設計師
奢華的裝修容易讓人產生距離感,精致簡約的設計往往更適合居家生活。生活壓力之下,人們更推崇化繁為簡的裝修方式,不需要多余的裝飾品,以簡單的裝修營造出寬敞大氣的效果。比如接下來這套裝修案例,125平的空間有著簡約的基調,又有細節的精致,大氣又不浮夸,進屋就不想離開了。

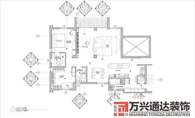
原平面圖,125平方米三室一廳的布局,沒有獨立的餐廳和書房。主臥承重墻延伸出的部分,影響了室內采光。

改造后的平面圖,拆除了主臥承重墻延伸部分,縮小臥室空間,增加采光的同時也開辟出書房空間。小臥室拆除墻壁,變身餐廳空間。打通空間后室內更寬敞。常住人口三人(夫妻+保姆阿姨),將保姆房設計在廚房后面的空間,生活互不打擾。


客廳以灰白色為基調,干凈又舒適,黃銅色點綴豐富空間。拆除主臥延伸的墻面,釋放空間讓室內通風采光條件更好。客廳橫梁和柱子非常明顯,但并沒有刻意去掩蓋,反倒有著分隔空間的作用,客廳、書房、餐廳彼此獨立,又連成一體,空間通透又寬敞。

電視墻直接刷白,沒有任何的造型裝飾,簡潔耐看。歐式的天花布局,簡約的造型設計也很有特色,與過道地磚花紋相呼應。

拆除主臥延伸墻體,開辟出了書房空間。書房與客廳連成一體,不僅空間寬敞還增加了互動效果。幾何形拼接的地板,與書架的菱形裝飾相呼應,很有設計美感。


餐廳由小臥室改造而成,拆除墻面和廚房設計成開放式。白色為主調提升空間明亮,木色家具點綴更顯自然輕松。

過道空間,云石地板和客廳地板形成拼撞,滿足了各個空間的需求。入戶動線的拉長,使得空間更加寬敞。


衛生間同樣的白色為主色,少量的金屬色點綴,空間寬敞又不單調。浴柜是定制的木面材質,搭配上臺上盆,視覺效果很棒。


臥室床頭墻壁采用木飾板,大白墻加入原木家具,明亮凈潔。頂面延續了傳統歐式線條裝飾,簡潔線條感十足。


走進衣帽間讓人驚訝,一臺老式腳踏縫紉機映入眼簾,雖然被淘汰但它承載著一代人的回憶,傳承著母親的心靈手巧和勤勞善良。吊頂豐富空間層次,同時降低層高提升舒適性。沿著掛桿安裝燈帶,提升衣帽間照明。穿衣鏡設計很巧妙,做了可移動軌道,方便移動試衣服。
。推薦閱讀: