優秀設計師
新房裝修流程是怎樣?50歲大媽記錄裝修全程,比視頻拍攝還全面
新房裝修流程,不管你多大的房子,裝修費用一般都在3個月左右,今天,小編給大家帶來兩位50歲的大叔阿姨從設計到開工到施工、家具購買全程指揮、跟進,然后進行了一個多數人眼中父母的“丑裝修”
-------------------房屋基本情況---------------------
面積:86㎡
戶型:兩室兩廳一廚一衛
裝修風格:現代簡約風格
裝修費用:14.5萬(基裝+主材+地暖+中央空調)
-----------------說正事專用分割線-----------------
▼先上兩張局部圖


那對于一個新房裝修來說,流程到底是什么呢?新房裝修流程到底是怎樣的呢?
第一步:設計
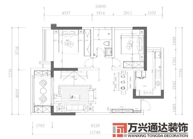
▼先來一張戶型圖:從戶型圖上我們可以看到,房屋戶型都是非常的方正,格局也是非常的棒,然而唯一不足的就是沒有地方晾衣服!

▼設計方案:不拆改原有格局,將廚房原有半開生活陽臺打通。

第二步:開工交底
▼熟悉其裝修流程,主要要記住有哪些裝修階段,每一個階段大概要多長時間之類的相關事宜!


PS:有知友問,什么是開工交底?
簡單來說,就是簽訂施工合同前的第一步,由房主、工長、設計師、監理等負責人到場,進行施工方案、特殊設計等最終確定,并且紙質化,避免后期增項這些.....不知是否講清楚了?如果有其他疑問,也可以私信問我~

如果你家的戶型沒有什么要拆改的地方,那在這交底完之后一定要進行成品保護(過道、門窗、強弱電箱、下水管關口、滅火器等)、鏟墻、刷界面劑工作(增加乳膠漆基層材料粘黏度)

在開工前,最好將水電基本布局圖給布局好!
第三步:隱蔽階段
▼有需要進行拆改的地方,那就進行拆改之后布線,如果有沒有拆改的就直接布線。

衛生間開關根據業主阿姨的生活習慣進行了調整。有人疑問為什么不能90度直接做,反而要彎個大月亮,難道是為了增加管道和線路?(其實,我們也很想一根管子拉平,但是后期可能萬一或許會出現換線情況,大月亮彎抽線比直角抽線方便太多了!)
其次,實在沒有必要一根管子穿一根線啊喂!一般說來三根線穿一根管子,沒有問題的好伐,節約三倍成本!(是否明白了為什么你家水電改造費用高出天際?望著自家滿屋看著橫平豎直,并排滿滿的管道一聲長嘆啊~~)


▼防水防水防水,重要的事說三遍!!!
防水第一層:看那個沒有被蓋住的藍色,這是用的東方雨虹的防水涂料,切記淋浴房的防水高度一般要做到1.8m!

管道口一定要用東西給遮擋好,防止施工的時候建筑垃圾掉進去堵塞!

防水第二層:丙綸(防水卷材),這個張貼也需要講究技法的哈,根據順水方向,上面蓋住下面,接縫處大于10公分!

廚房防水:廚房的防水高度最好在30公分左右!如下圖↓↓↓

在做這兩次防水,第二次在做的時候,一定要注意要在第一次干透之后進行!兩遍都完成以后,再繼續晾著吧!在做的時候,避免人進去踩踏!
▼閉水試驗:閉水此時至少要在48小時左右!

第四步:泥木階段
▼吊頂,在我們做吊頂之前,一定要做中央空調



▼地暖安裝(第三代模塊干式地暖) 在冬天室內溫度和室外溫度沒差的成都,有地暖真的不要太幸福啊!!!看著安裝




▼貼磚
接下來就要進行貼磚!






電視墻設計!


第五步:油漆階段
▼進行刮膩子,石膏,上底漆等



哇,終于到了最后一個階段了,所有的都完工了!接下來就要開始進家具家電了!
▼簡約不簡單,品質才是最舒適貼心的選擇
在開工前,櫥柜和衣柜等就早就定下來了,因為這些都是要時間定制的!



在我們選擇家具的時候,一定要遵循一看、二摸、三對比、四體驗之后才決定!


茶幾與電視柜、餐桌相互映襯,黑色線條勾勒綜合了房屋過分的明亮,看起來更加協調、柔和。


本戶型有個超大的陽臺!直接做成落地窗,采光夠夠的!但也猶豫戶型沒有多余的部分,所以晾衣只能坐在陽臺上。另外陽臺兩端一邊做了正面的衣柜,另一邊做了到頂的書桌(業主有個帥氣的兒子,并且業主先生是一個知識面很廣,專業度很深的人,也會經常用到書桌)

▼低調的奢華(接下來是是重金的部分)
菲儷全屋定制衣柜,空間布局、線條、色彩、質感,每一處細節簡直不能細看,多看一眼都會愛上的好么!!搭配陽光林森的床具、乳膠墊,還有什么比全身心的放松更完美呢???(有,請告訴我~)



PS:插播一句,關于床頭插座,很多人抱怨柜子遮擋住了插座,使用感太不方便了。在此,答主建議一定要先選好床柜,確定一個大概的高度,否則后期即便遇上很喜歡很喜歡的柜子之類的,可能因為前期設計不合理,要么放棄,要么委屈~~



哎呀,終于結束了,看這就是裝修的完整過程,希望能夠幫到大家!
如果您準備裝修,可點開作者頭像進入主頁,點擊正下方“戶型設計”,即可免費領取4套戶型設計方案+當地精準報價一份!

------------------------------------------------------------------------------------------
點擊“了解更多”,查看2018精準裝修報價,多多比較少花冤枉錢!

。推薦閱讀: