優秀設計師
中秋節大家過的怎么樣啊,有沒有吃到好吃的月餅呢?北京合建志洋裝飾公司的中秋優惠活動有沒有參加呢?今天要給大家介紹的樓盤也是北京合建志洋裝飾公司參與裝修設計的,位于CSD辦公樓南側昊天北大街的天資華府樓盤,如果正好也是你想咨詢的樓盤,那就趕緊來看看天資華府戶型圖以及合建志洋的裝修案例吧。
北京天資華府位于西南五環畔,出入北京城方便快捷,打造出則繁華入則靜謐的宜居社區,小區內部人車分流,全緩坡無障礙式出行。小編了解到,北京合建志洋裝飾公司也為購買該樓盤的業主進行裝修,參與設計裝修的戶型從94平米兩居室、117平米三居室和 平米三居室,那么接下來就來了解一下北京合建志洋裝飾公司的實力究竟幾何吧。
北京天資華府項目外景效果圖

北京天資華府樓盤戶型一:94平米兩室一廳
原始戶型圖

本戶型極為合理,不需要多做改動,進門玄關處,稍作改動即可風格定義為美式風格。本方案對于裝修的要求比較特別,地板及墻面的要求比較特殊。所以采用了護墻板及地板、地磚相結合的地面的設計。突出了美式風格的基本理念。



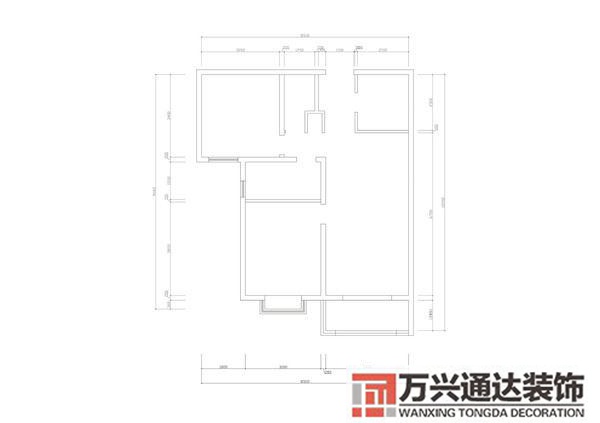
北京天資華府樓盤戶型二:117平米三室兩廳
原始戶型圖

北歐風格裝修效果圖
本方案在設計上追求功能與形式完美統一,優雅獨特,簡潔明快的設計風格。針對這一主題,設計上以協調各功能空間的使用要求為目的,布局上力求合理,功能上力求完備,動線計劃上爭取做到暢通合理,滿足功能要求,同時又給人以藝術之美感。



設計采用簡約明朗的線條,將空間進行了合理的分隔。面對擾嚷的都市生活,一處能讓心靈沉淀的生活空間,是本房業主心中的一份渴望,也是本設計在該方案中所體現的主要思想。因此,開放式的大廳設計給人以通透之感,避免視覺給人帶來的壓迫感,可緩解業主工作一天的疲憊。沒有夸張,不顯浮華,通過過于干干凈凈的設計手法,將業主的工作空間巧妙地融入到生活空間中。



簡歐風格裝修效果圖
臥室:南向主臥,保證充足采光。廚房:明廚設計,讓油煙遠離室內。餐廳:客廳餐廳分而不離,簡潔便利。門廳位置加一組儲物柜,方面進出入初五滿足的基礎功能需求。拆去背面臥室的輕體墻,使得原本兩個不規則的房間成為兩個正方形的常規空間。次臥2設計為榻榻米,滿足功能需求。去掉主衛的門,新建一堵墻做干濕分離用,洗臉盆放在干區讓空間更寬敞。



北京天資華府樓盤戶型三: 平米三室兩廳
原始戶型圖

北歐風格裝修效果圖
戶型缺陷分析:
1. 入戶門直接沖著窗戶,空間格局分的不是太明確。
2. 廚房結構缺角,洗衣機原始擺放位置空間利用率太低。
3. 三個臥室如何利用提高利用率。
建議拆改方案
1. 門廳進門加玄關,阻擋入戶門直接對著餐廳窗戶,同時解決隱私問題。
2. 把原有的洗衣機空間劃為廚房,整體廚房變為U型的,提高利用率。
3. 考慮其中一個臥室作為榻榻米加書房的多功能空間。



現代簡約風格裝修效果圖
現代風格是比較流行的一種風格,追求時尚與潮流,非常注重居室空間的布局與使用功能的完美結合。此案結合年輕業主的喜好,搭配了較多飽和度高的鮮艷顏色,讓空間更加活潑更加富有朝氣。



以上就是小編為大家整理的由北京合建志洋裝飾公司進行裝修設計的北京天資華府樓盤的幾種戶型裝修效果圖案例,希望對大家有所幫助。
。推薦閱讀: